Nazovite za više informacija ili zakažite prezentaciju proizvoda.
Cavalletto 300 kg
Struktura za podršku mašinama do 300 kg. Dizalice do 200 kg moraju biti opremljene točkovima modela A. Dizalice sa nosivošću od 300 kg i više već su pripremljene za montažu na ovaj dodatak. Balast omogućava sigurnu i brzu instalaciju, a korisnik može pripremiti protuteže ili fiksacije koje naravno mora potvrditi ovlašćeni tehničar.

Mod. A
Cavalletto 500 kg
Struktura za podršku dizalicama sa nosivošću od 500 kg. Balast omogućava sigurnu i brzu instalaciju, a korisnik može pripremiti protuteže ili fiksacije koje naravno mora potvrditi ovlašćeni tehničar.
Cavalletto 1000 kg
Struktura za podršku dizalicama sa nosivošću od 1000 kg. Balast omogućava sigurnu i brzu instalaciju, a korisnik može pripremiti protuteže ili fiksacije koje naravno mora potvrditi ovlašćeni tehničar.
| CAVALLETTO | Kg 300 | Kg 500 | Kg 1000 |
|---|---|---|---|
| A | 3000 mm | 3000 mm | 3000 mm |
| B | 1030 mm | 1055 mm | 1055 mm |
| C | 2080 mm | 2050 mm | 2050 mm |
| D | 1860 mm | 1890 mm | 1890 mm |
| E | 1580 mm | 1580 mm | 1580 mm |
| Težina sa nosačima | 87 kg | 126 kg | 132 kg |
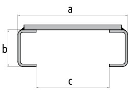
Tehnički Podaci - Biro Taia
| BIRO TAIA | Kg 300 | Kg 500 | Kg 1000 |
|---|---|---|---|
| a | 180 mm | 210 mm | 210 mm |
| b | 60 mm | 80 mm | 80 mm |
| c | 120 mm | 120 mm | 120 mm |
| Težina | 25.7 kg | 59 kg | 63 kg |

